La Cabane
Valmondois
Etude de faisabilitéAnimation d'ateliers
2022
La Facto (Assistance à maîtrise d'usage)
La Cabane (commanditaire)
PLPA (commanditaire)
Ville de Valmondois (Maîtrise d'ouvrage)
PNR du Vexin français (financeur de l'étude)
Stéphane Petit (économiste)
Les associations La Cabane et PLPA (Des Petits Loups aux Potes Agés) nous ont sollicité pour les accompagner dans le démarrage d'un projet de construction qu'ils portent conjointement avec la ville de Valmondois, dans le val d'Oise et le Parc Naturel du Vexin Français.
L’association de la Cabane, créée en 2017, est un café associatif. L’association vise à créer un lieu collectif et convivial, « construit de bric et de broc », se faisant le relais des initiatives locales, des musicien•e•s aux maraîcher•e•s en passant par les réparateur•rice•s ou les yogistes. Actuellement installée dans un pavillon qui doit être démoli dans les prochaines années, l’association doit déménager ses activités.
L’association PLPA, créée en 2014, est un potager communautaire installé sur une parcelle appartenant à la commune de Valmondois. L’association cultive collectivement 1000 m² de terrain, y produit des légumes et fruits en agriculture biologique, et développe un rucher.
Pour répondre au besoin de nouveaux locaux de la Cabane, l’idée est née chez les deux associations de se rassembler autour du projet de création d’un nouvel espace mis en commun. La demande des associations était que nous réalisions une étude de faisabilité du projet de construction d'un nouveau local d'activité sur la parcelle du jardin ; document qui leur servirait par la suite dans le cadre de leur recherche de financements pour la réalisation du projet.
La Ville de Valmondois est propriétaire du terrain, et se portera maîtrise d’ouvrage du projet de construction de ce bâtiment d’intérêt collectif. Les deux associations souhaitent quant à elles être investies dans toutes les étapes du projet. Elles veulent participer au chantier et que celui-ci soit support de formations pour les habitants de la région. Le Parc Naturel Régional du Vexin français, qui a financé cette étude, est très moteur sur le territoire dans le développement des filières locales d'éco-construction, et souhaite que ce projet s'inscrive dans cette démarche.
Pour la réalisation de l'étude de faisabilité, nous avons travaillé étroitement avec le groupe délégué par les conseils d’administration des deux associations, afin de retranscrire au mieux les envies et besoins des futurs et actuels usager•e•s des locaux de ces deux associations.
Des ateliers de travail ont été organisés, ayant pour thèmes :
- la réglementation (qu'est-il possible de faire vis-à-vis du Plan Local d'Urbanisme, de la contrainte d'inondabilité du terrain, des recommandations des Architectes des Bâtiments de France)
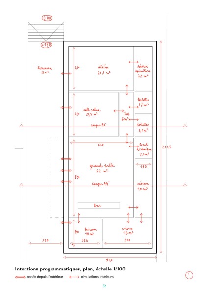
- la programmation et l’implantation du bâtiment sur la parcelle (nous avons réalisé une maquette-outil permettant de travailler ces questions collectivement)
- les matériaux du projet (travail sur dessin et à l’aide d'une matériauthèque d'échantillons de matériaux biosourcés - prêtée par la Coopérative Construire Solidaire : Quels matériaux et techniques disponibles localement ? Quels matériaux se prêtent plus au chantier participatif ? Travail de choix par matériaux autour de ces trois composantes : coût, intérêt écologique et possibilités de mise en œuvre participative)
- et l’organisation d'un projet participatif (travail autour d’un organigramme de projet : Qui fait quoi pendant les études et pendant chantier participatif, à la fois du côté des associations et des professionnels ? Comment le collectif peut trouver sa place dans un projet de construction et quelle place souhaite-t-il prendre ? Quelles forces vives internes ?).
Nous avons ensuite organisé une visite de site pour que les associations rencontrent deux autres porteurs de projet similaires (commanditaires associatifs ayant réalisé des chantiers participatifs de construction de leurs locaux à Montreuil : Récolte Urbaine et Le Fait Tout). Grâce à tous ces éléments, nous avons finalisé l'esquisse du projet et réalisé un premier chiffrage de l'opération. L'étude a été transmise aux associations, à la Ville et au PNR, puis les associations l'ont à leur tour présenté à tous leurs adhérents dans le cadre d'un événement. Lors d'un après-midi, elles ont reproduit les différents ateliers que nous avions proposé, en les réadaptant pour qu'ils soient adaptés à des groupes plus larges.
L'ensemble des parties prenantes est maintenant attelé à la recherche de subventions pour la réalisation du projet. Croisons les doigts !








































